• info@ulkersolar.com

Projelendirme

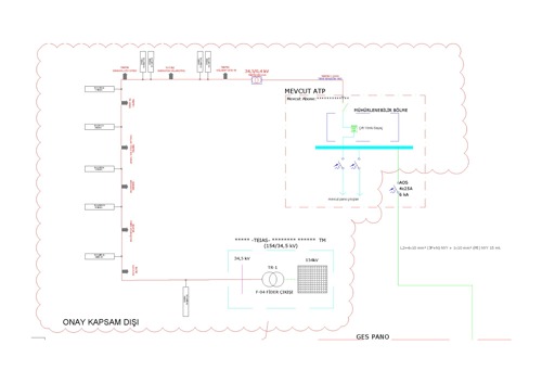
GES Projeler

Güneş enerjisi, temiz ve yenilenebilir bir kaynak olarak enerji sektöründe giderek daha fazla önem kazanmaktadır. Firmamız, GES projelerinin başlangıcından itibaren tesis yerleşim çalışması, üretim analizi, sistem tasarımı, ekipman seçimi ve kurulum süreçlerinde kapsamlı destek sağlamaktadır.

Uzman mühendislerimiz, en uygun panel yerleşimini belirlemek, enerji üretimini optimize etmek ve projenin maliyet etkinliğini sağlamak için çalışır. Ekibimizce hazırlanan proje ve yapılan hesaplamalar kurum onayına sunularak yine tarafımızca takibi yapılır.

RES Projeler

Rüzgar enerjisi, özellikle rüzgar potansiyeli yüksek bölgelerde etkili bir enerji üretim yöntemidir. RES projelerinde, rüzgar ölçümleri, türbin seçimi, santral yerleşim planlaması ve elektriksel altyapı tasarımı gibi kritik süreçlerde mühendislik hizmetleri sunuyoruz.

Rüzgar enerjisi santrallerinin çevresel etkilerini en aza indirgemek ve enerji üretimini maksimize etmek için yenilikçi çözümler geliştirir, projenin her aşamasında, teknik ve idari süreçlerin takibini yaparak proje onay sürecini tamamlarız.

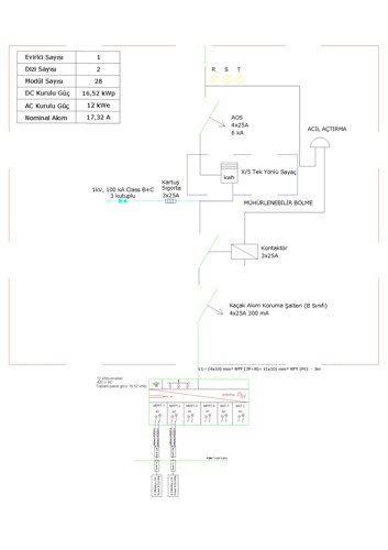
Elektrik Tesisat Proje Çizimi

Her başarılı montajın arkasında doğru hazırlanmış bir elektrik tesisat proje süreci vardır. Keşif aşamasında tüm bağlantı noktalarını belirler, enerji ihtiyacını analiz ederiz. İstanbul’da ticari plazalardan sanayi tesislerine, Türkiye genelinde konut projelerinden kamu binalarına kadar geniş bir yelpazede proje çizimi yapıyoruz. Projelerimiz, hem estetik hem de teknik açıdan en verimli sonuçları elde edecek şekilde planlanır.

Kuvvetli akım tesisatı, yüksek güç gerektiren sanayi tesisleri, fabrikalar ve alışveriş merkezleri gibi alanlarda kullanılır. Bu sistemlerde trifaze pano montajı, ana besleme hatları, sigorta ve koruma sistemleri titizlikle uygulanır. İstanbul’daki OSB bölgeleri ve Türkiye’nin farklı şehirlerindeki üretim tesislerinde, yüksek akım güvenliğini sağlayan çözümler sunuyoruz.

Zayıf akım tesisatı, enerji iletimini düşük voltajla sağlar ve telefon, data, güvenlik kamerası ile yangın alarm sistemlerini kapsar. Projelerimizde zayıf akım telefon/data hattı çekimi yapar, ardından sinyal bütünlüğü testleri gerçekleştiririz. Böylece sorunsuz iletişim altyapıları kurarız. Ayrıca, bu sistemler modern binalarda hem güvenlik hem de iletişim kalitesini artırdığı için kritik öneme sahiptir. Bunun yanında, düzenli bakım ve testlerle sistemin uzun ömürlü olmasını sağlarız.

 

 

Galeri

Galeri